SEARCH

リノベ済みの物件を探す

view list

SEARCH

ファミリータウン東陽H棟

東京都江東区東陽町2-3-3

NEW!

マンション

価格(税込)
5,780万円
ファミリータウン東陽は、駅チカのペットと暮らせる(細則有)新耐震基準のマンションです。15階建ての最上階、東向きのお部屋。エレベーターは2基あります。リノベ済みなのですぐに新生活が始められます。

ファミリータウン東陽は、駅チカのペットと暮らせる(細則有)新耐震基準のマンションです。15階建ての最上階、東向きのお部屋。エレベーターは2基あります。リノベ済みなのですぐに新生活が始められます。

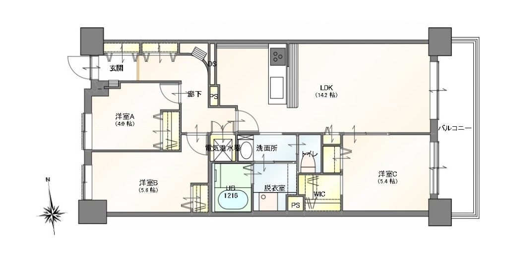
【間取り】3LDK

【間取り】3LDK

【外観】 広大な敷地内に建つ大規模マンション。植栽が美しく配置され管理も行き届いています。敷地内には公園もあり憩いの場になっています。

【外観】 広大な敷地内に建つ大規模マンション。植栽が美しく配置され管理も行き届いています。敷地内には公園もあり憩いの場になっています。

【リビング】 カーペット床には、新毛100パーセント、防ダニ加工、制電タイプを使用しています。自然素材なので人工毛に比べて家具の跡が残りにくい特徴があります。

【リビング】 カーペット床には、新毛100パーセント、防ダニ加工、制電タイプを使用しています。自然素材なので人工毛に比べて家具の跡が残りにくい特徴があります。

【リビング】 クロスと建具をホワイト系で統一して洗練された空間を演出しています。

【リビング】 クロスと建具をホワイト系で統一して洗練された空間を演出しています。

【洋室】 洋室は3部屋あります。全てのお部屋に収納完備。ウォークインクローゼットもあります。

【洋室】 洋室は3部屋あります。全てのお部屋に収納完備。ウォークインクローゼットもあります。

【洋室】 洋室は3部屋あります。全てのお部屋に収納完備。ウォークインクローゼットもあります。

【洋室】 洋室は3部屋あります。全てのお部屋に収納完備。ウォークインクローゼットもあります。

【ウォークインクローゼット】 2段のハンガーパイプ仕様なのでたくさんの洋服が収納可能です。

【ウォークインクローゼット】 2段のハンガーパイプ仕様なのでたくさんの洋服が収納可能です。

【キッチン】 対面式のシステムキッチン。食洗機完備なので後片付けもはかどります。

【キッチン】 対面式のシステムキッチン。食洗機完備なので後片付けもはかどります。

【浴室】 寛げる浴室は追い炊き機能、浴室換気乾燥機能付きで快適なバスタイムをお過ごしいただけます。

【浴室】 寛げる浴室は追い炊き機能、浴室換気乾燥機能付きで快適なバスタイムをお過ごしいただけます。

【トイレ】 清潔感のあるトイレはウォシュレット一体型になっています。

【トイレ】 清潔感のあるトイレはウォシュレット一体型になっています。

【洗面化粧台】 収納のある洗面化粧台。洗面スペースと脱衣室が引き戸で分離されてた間取りです。使い勝手の良さを現地でご覧下し。

【洗面化粧台】 収納のある洗面化粧台。洗面スペースと脱衣室が引き戸で分離されてた間取りです。使い勝手の良さを現地でご覧下し。

【洗面室・脱衣室の引き戸分離仕様】 収納のある洗面化粧台。洗面スペースと脱衣室が引き戸で分離されてた間取りです。使い勝手の良さを現地でご覧下し。

【洗面室・脱衣室の引き戸分離仕様】 収納のある洗面化粧台。洗面スペースと脱衣室が引き戸で分離されてた間取りです。使い勝手の良さを現地でご覧下し。

【廊下収納】 大容量のある廊下収納があります。

【廊下収納】 大容量のある廊下収納があります。

【玄関】 シューズボックスも大容量なので、たくさんの靴を収納していただけます。

【玄関】 シューズボックスも大容量なので、たくさんの靴を収納していただけます。

【アール型の廊下】 室内廊下はアール仕様。ニッチをプランニングしてギャラリーのような雰囲気を演出しています。

【アール型の廊下】 室内廊下はアール仕様。ニッチをプランニングしてギャラリーのような雰囲気を演出しています。

【バルコニー】 バルコニーの様子です。

【バルコニー】 バルコニーの様子です。

【眺望】 バルコニーかtらの眺望。大きな青空が広がり開放感があります。

【眺望】 バルコニーかtらの眺望。大きな青空が広がり開放感があります。

【エントランス】 植栽が綺麗に手入れされたエントランスの様子です。

【エントランス】 植栽が綺麗に手入れされたエントランスの様子です。

【エントランスホール】 広い空間が確保されたエントランスホールの様子です。

【エントランスホール】 広い空間が確保されたエントランスホールの様子です。

【敷地全体図】 広大な敷地内に建つ大規模マンション。植栽が美しく配置され管理も行き届いています。敷地内には公園もあり憩いの場になっています。

【敷地全体図】 広大な敷地内に建つ大規模マンション。植栽が美しく配置され管理も行き届いています。敷地内には公園もあり憩いの場になっています。

【エレベーターホール】 窓があるので明るいエレベーターホールの様子です。

【エレベーターホール】 窓があるので明るいエレベーターホールの様子です。

【駐車場】 駐車場の様子です。空き状況は随時ご確認ください。

【駐車場】 駐車場の様子です。空き状況は随時ご確認ください。

【駐輪場】 駐輪場の様子です。空き状況は随時ご確認ください。

【駐輪場】 駐輪場の様子です。空き状況は随時ご確認ください。

【バイク置き場】 バイク置き場の様子です。空き状況は随時ご確認ください。

【バイク置き場】 バイク置き場の様子です。空き状況は随時ご確認ください。

【敷地内公園】 憩いの場になっています。お子様にも安心して遊んでいただけます。

【敷地内公園】 憩いの場になっています。お子様にも安心して遊んでいただけます。

ファミリータウン東陽は、駅チカのペットと暮らせる(細則有)新耐震基準のマンションです。15階建ての最上階、東向きのお部屋。エレベーターは2基あります。リノベ済みなのですぐに新生活が始められます。
【間取り】3LDK
【外観】 広大な敷地内に建つ大規模マンション。植栽が美しく配置され管理も行き届いています。敷地内には公園もあり憩いの場になっています。
【リビング】 カーペット床には、新毛100パーセント、防ダニ加工、制電タイプを使用しています。自然素材なので人工毛に比べて家具の跡が残りにくい特徴があります。
【リビング】 クロスと建具をホワイト系で統一して洗練された空間を演出しています。
【洋室】 洋室は3部屋あります。全てのお部屋に収納完備。ウォークインクローゼットもあります。
【洋室】 洋室は3部屋あります。全てのお部屋に収納完備。ウォークインクローゼットもあります。
【ウォークインクローゼット】 2段のハンガーパイプ仕様なのでたくさんの洋服が収納可能です。
【キッチン】 対面式のシステムキッチン。食洗機完備なので後片付けもはかどります。
【浴室】 寛げる浴室は追い炊き機能、浴室換気乾燥機能付きで快適なバスタイムをお過ごしいただけます。
【トイレ】 清潔感のあるトイレはウォシュレット一体型になっています。
【洗面化粧台】 収納のある洗面化粧台。洗面スペースと脱衣室が引き戸で分離されてた間取りです。使い勝手の良さを現地でご覧下し。
【洗面室・脱衣室の引き戸分離仕様】 収納のある洗面化粧台。洗面スペースと脱衣室が引き戸で分離されてた間取りです。使い勝手の良さを現地でご覧下し。
【廊下収納】 大容量のある廊下収納があります。
【玄関】 シューズボックスも大容量なので、たくさんの靴を収納していただけます。
【アール型の廊下】 室内廊下はアール仕様。ニッチをプランニングしてギャラリーのような雰囲気を演出しています。
【バルコニー】 バルコニーの様子です。
【眺望】 バルコニーかtらの眺望。大きな青空が広がり開放感があります。
【エントランス】 植栽が綺麗に手入れされたエントランスの様子です。
【エントランスホール】 広い空間が確保されたエントランスホールの様子です。
【敷地全体図】 広大な敷地内に建つ大規模マンション。植栽が美しく配置され管理も行き届いています。敷地内には公園もあり憩いの場になっています。
【エレベーターホール】 窓があるので明るいエレベーターホールの様子です。
【駐車場】 駐車場の様子です。空き状況は随時ご確認ください。
【駐輪場】 駐輪場の様子です。空き状況は随時ご確認ください。
【バイク置き場】 バイク置き場の様子です。空き状況は随時ご確認ください。
【敷地内公園】 憩いの場になっています。お子様にも安心して遊んでいただけます。
この物件の資料や見学について
問い合わせる

POINT

【リノベ済】ペット飼育可能(細則有)・最上階・東向き・70平米以上の広さ

〇ポイント
 ・耐震基準適合証明書取得可能
 ・住宅ローン控除適用可能
 ・竹中工務店・鹿島建設施工

〇特徴
 ・カーペット新規交換(天然素材、防ダニ加工、制電タイプ)
 ・ギャラリー風の室内廊下(アール壁、ニッチ造作)
 ・ウォークインクローゼット
 ・フトンクローゼット
 ・洗面室と脱衣室を扉で分離した間取り
 ・LDK14帖
 ・全居室に窓有

〇リフォーム内容
 ・キッチン、浴室、洗面、トイレ
 ・電気温水器、給排水管
 ・クロス貼替、カーペット貼替
 ・フロアタイル上貼
 ・建具、LED照明新規(一部)
 ・浄水器、食洗機
 ・追焚機能、浴室換気乾燥機


 

\\販売会開催// 

 

■毎週(土日)・祝日

■10時~17時

お客様のご希望日時をお知らせください。

担当者からご連絡をさせていただきます。

 

■ご案内

ご自宅へのお迎え、最寄り駅、現地待ち合わせ、弊社へのご来社等。

ご相談ください。ご希望があれば周辺環境のご案内も致します。

話しやすいスタッフばかりですので、住宅ローンのご相談もお気軽に。

 

※現地にスタッフは待機しておりません。

※事前のご予約をお願い致します。

 

 

\\購入サポート制度//

 

【住宅ローンの事前審査申し込み】

 

「いくら借入ができるのか」金融機関への審査の申し込みをサポートします。

特定の金融機関をご希望の場合は担当者までお申し付けください。

金融機関により、金利、借入期間、最大借入可能金額が異なります。

 

【買替時の売却サポート】

 

■売却査定

お住み替えにご所有物件の売却が伴う場合、「いくらで売れるのか」売却査定を承ります。

 

■販売活動の実施

ご希望の価格で一定期間内の販売活動を承ります。

 

■買取保証サービス

一定期間内に売却が成立しない場合、あらかじめお約束した価格で広島建設が直接買取させていただくサービスです。

現況での買取も可能ですので、事前に不用品を処分する手間がかかりません。

地域、物件によりお取り扱いできない場合がございますので、詳細は担当者までお問合せください。

 

■物件買取サービス

お住み替えにご所有物件の売却が伴う場合、弊社広島建設が直接買取させていただくサービスです。

弊社が買主となるため、お客様のご都合に合わせたお引き渡し時期の相談が可能です。

地域、物件によりお取り扱いできない場合がございますので、詳細は担当者までお問合せください。

 

 

 

SPEC

設備仕様・その他

【地図】

【地図】

【地図】ファミリータウン東陽は、駅チカのペットと暮らせる(細則有)新耐震基準のマンションです。15階建ての最上階、東向きのお部屋。エレベーターは2基あります。リノベ済みなのですぐに新生活が始められます。

【周辺環境】

【周辺環境】

【周辺環境】ショッピングセンター 西友東陽町店まで804m 徒歩11分

【周辺環境】

【周辺環境】

【周辺環境】スーパー まいばすけっと東陽1丁目店まで816m 徒歩11分

【周辺環境】

【周辺環境】

【周辺環境】コンビニ セブンイレブン東陽2丁目サンヒダカ店まで512m 徒歩7分

【周辺環境】

【周辺環境】

【周辺環境】ドラッグストア マツモトキヨシ東陽町駅前店まで493m 徒歩7分

【周辺環境】

【周辺環境】

【周辺環境】ドラッグストア くすりの福太郎東陽町3丁目店まで829m 徒歩11分

【周辺環境】

【周辺環境】

【周辺環境】郵便局 深川郵便局まで690m 徒歩9分

【周辺環境】

【周辺環境】

【周辺環境】役所 江東区役所まで982m 徒歩13分

【周辺環境】

【周辺環境】

【周辺環境】図書館 江東区立東陽図書館まで236m 徒歩3分

【地図】

【地図】

【周辺環境】

【周辺環境】

【周辺環境】

【周辺環境】

【周辺環境】

【周辺環境】

【周辺環境】

【周辺環境】

【周辺環境】

【周辺環境】

【周辺環境】

【周辺環境】

【周辺環境】

【周辺環境】

【周辺環境】

【周辺環境】

<ファミリータウン東陽H棟>
の住宅ローンお支払い例

価格:5,780万円、頭金:0万円、借入額:5,780万円の場合

SIMULATION

当初月返済額
(税込)

155,153

住宅ローン:155,153円/月

管理費:11,050円/月

修繕積立金:15,000円/月

毎月支払額
(税込)

181,203

紹介金融機関:住信SBIネット銀行
紹介ローン:・団信・全疾病保証付き・保証料 0円・事務手数料 借入金額の2.2%(税込)
融資限度額:販売価格に対して100%以内
返済例:価格/5,780万円、頭金/0万円、借入額/5,780万円、返済期間/35 年、利率/年利0.698%(変動金利型)

※融資実行時の金利が適用されるため、表記されている返済額および金利を保証するものではございません。
※審査によって融資の一部もしくは全部をご利用頂けない場合がございます。予めご了承ください。

DETAIL

物件概要

物件公開日/2026年1月23日
情報更新日/2026年1月23日

物件名
ファミリータウン東陽H棟
所在地
東京都江東区東陽町2-3-3 Google map
販売価格
5,780万円
間取り
3LDK
取引形態
売主
築年月
1982年1月(築44年)
現況
空室
駐車場
月額16,100円~17,500円(※空き状況は随時ご確認ください。)
諸費用
・自治会費 月額 500円
・外部組合通信費 月額 1000円
バルコニー面積
8.52㎡
バルコニー方向
階数 / 所属階
15階建て/15階部分
専有面積(壁芯)
70.87㎡(壁芯)
管理費
11,050円
修繕積立金
15,000円
管理方式
日勤
管理形態
全部委託
借地権
----
ペット飼育の可否
可(細則有)
建物構造
鉄骨鉄筋コンクリート
交通機関
・東京メトロ東西線「東陽町」駅徒歩5分
設備
・エレベーター 2基
小・中学校区
・江東区立南陽小学校 717m 徒歩9分
・江東区立東陽中学校 632m 徒歩8分
備考
【総戸数】
・90戸

【その他法令上の制限】
・告知事項有り:病死で死後40日後の発見、特殊清掃実施済み(リビング)
リノベーション内容
 ・キッチン、浴室、洗面、トイレ
 ・電気温水器、給排水管
 ・クロス貼替、カーペット貼替
 ・フロアタイル上貼
 ・建具、LED照明新規(一部)
 ・人感センサー付き照明
 ・浄水器、食洗機
 ・追焚機能、浴室換気乾燥機

リノベーション完成時期
2026年1月15日
この物件の資料や見学について
問い合わせる